减速机轴承间隙的调整标准【超强解读】
减速机运转一段时间后,因为各部件间彼此的磨损,会导致轴承空隙的增大,为确保减速能继续安稳的工作,要在减速机运转必定的时间后,对减速机的各轴轴承空隙进行调整。
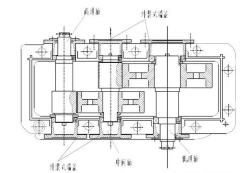
在减速机轴系固定方法一般选用轴系两头固定和轴系一端固定,一端游动两种方法。而两头固定方法一般又选用轴承端盖外装式及轴承端盖嵌入式两种。
以下是对选用几种固定方法的减速机在调整轴承间隙的办法总结。
1 轴系两头固定方法
这种结构常选用端盖固定轴承外圈,结构简略,运用便利。在一般的齿轮减速机及轴承支承点跨距<300㎜的蜗杆减速机中较为常见。
1)外装式端盖的减速机轴承空隙调整
此种方法结构简略,运用便利,在减速机中被广泛选用。

图1是外装式端盖固定的齿轮轴系结构:出厂时大多会在两头留有适量的轴向空隙,以确保轴承的灵敏运转及轴系零件的热伸长。此空隙一般在0.25㎜~0.4㎜范围内,否则会使翻滚体受载不均匀并引起较为严重的轴向窜动。因而要靠调整轴承空隙来确保必定的轴向空隙。在调整此种固定方法的轴系时,首要打开减速机的观察孔,看准齿轮的啮合状况后,再确定轴系是从哪个方向移动空隙。
假如确定高速轴向输入侧调整空隙,就要把高速轴的闷盖拆下,用深度游标卡尺测出轴承距端盖平面的深度记下;然后用撬杠类东西把轴系向输入侧移动,再测出闷盖端轴承距端盖平面的深度,两个深度尺度的差值便是轴承移动的量。把轴系移动好后,就在轴承孔上加上与移动量相等的垫片,最终装上闷盖。
待一切部件装配完后,悄悄盘动减速机,查看各轴滚动是否灵敏。若仍有卡阻,则可对加的垫片厚度适量减薄。直到把减速机各轴的滚动调整到灵敏。根据实际状况,还能够把装置于箱体上的轴承端盖进行切削加工,切削深度为轴承移动量或略大于移动量的0.20㎜。如切削深度大于端盖平面厚度的1/3,则因为端盖太薄,强度减弱,需求从头加工端盖。
对可调整空隙的向心推力轴承,可通过调整轴承由外圈的相对方位得到需求的轴承游隙。这种游隙一般比较小,以确保轴承刚性和削减噪声、振荡。对不行调空隙的轴承(如向心球轴承),可在装配时通过调整,使固定端盖与轴承外圈端面间留有适量的空隙,以容许轴系的热伸长。
在圆锥齿轮减速机中,关于悬臂的小锥齿轮的轴系,要求具有良好的刚性,并且能调整轴系的轴向方位,以达到两齿轮锥顶重合。因而常将整个轴系装于套环内而形成一个独立组件。套杯的肩起固定轴承的效果,凸肩不行过高,以利于轴承的拆开套杯凸缘及轴承端盖处都有垫片用来调整轴承空隙及调理轴系的轴向方位。
圆锥齿轮轴系选用向心推力轴承时,轴承有正装置和反装置两种安置方案。正装置的结构支点跨距较小,刚度较差,但用垫片完成调整比较便利。反装置的结构装置轴承不方便,用圆螺母调整比较麻烦,但支点跨距较大,刚性较好。当要求两轴承安置紧凑而有需求进步轴系的刚性时,常选用此种结构。
2)嵌入式端盖的减速机轴承空隙调整
主要是通过减速机自身的调整端盖来完成轴承空隙的调整,不用拆开减速机的零部件。某矿卷扬机选用的蜗轮蜗杆减速机蜗杆轴承空隙的调整形式。
在生产空隙时停机对减速机轴承空隙进行调整,假如能卸出输出端的负载,调整将更为准确,利用调整端盖上的调整螺栓进行调整,调好后,悄悄盘动减速机,查看各轴滚动是否灵敏。若仍有卡阻,则反复调整,直到把减速机各轴的滚动调整到灵敏、无显着轴向窜动为佳。

因为运用中各零件的彼此效果,使得固定轴承外圈(或内圈)的挡圈和端盖上压轴承外圈的台肩会发生必定量的磨损,这些不起眼的磨损,累加起来也会使轴系有很大空隙,也能导致轴系发生窜动。
值得注意的是与调整螺栓配套的嵌入压盖(如图2),与轴承外圈触摸的部分,有的减速机上该压盖触摸面过少,经常导致磨损敏捷,大大缩短了轴承空隙调整周期,解决的办法是:增加内压盖与轴承外圈的触摸面积(从头制造加工,加宽内压盖的轴承外圈压边),也能有用的延伸轴承空隙的调整周期,避免轴承的损坏。
当然,内压盖磨损还有其它的原因,比如轴承支承孔磨损严重,破坏了原有的合作公差,致使轴承走外圆(外圈在摩擦力效果下随轴承滚动)等。
2 轴系一端固定、一端游动方法
一端固定、一端游动轴系结构比较复杂,但可容许轴系有较大的热伸长。多用于轴承支点跨距较大、温升较高的轴系中。安排支承时,应把受径向力较小的一端作为游动端,以削减轴向游动时的摩擦力。假如两支点的径向力相近,则常选轴伸端作为游动端。

所示是一端固定一端游动的蜗杆轴系,固定端的支承用组合轴承构成,组合轴承的两个圈分别用套杯凸肩和轴承端盖双向固定,两内圈则用轴上零件,轴肩或圆螺母双向固定,因为固定段轴承接受轴向力,一般不用弹性挡圈作为固定件。
用圆螺母固定轴承内圈时,其螺纹直径要小于轴承内径,直径应小于垫片尺度,垫片在沟槽中的方位应低于螺纹内径(见图3)。当选用圆锥滚子轴承时。为了避免螺母与轴承保持架触摸,应在螺母与轴承间加一隔套。
游动端支承可选用向心球轴承或向心滚子轴承。关于向心球轴承,内圈两边可依托轴肩和轴上零件固定,外圈则不固定,因而可在轴承座孔中做轴向游动,关于向心滚子轴承内外圈两边都需求固定。轴向游动靠滚子相关于外圈的轴向位移来完成。
减速机各轴系轴承空隙的调整对安稳运转至关重要,在调整轴承空隙时应注意以下几点。
1、必须要以齿轮啮合为依据,需契合两齿轮触摸斑驳、齿侧空隙及齿顶隙的要求,即要以减速机滚动轻快、灵敏为准。
2、轴承空隙必须在可调范围内,若轴承空隙现已处于报废状态时,再调整空隙就没有实际意义。
3、加强操作人员及点检人员的责任心,随时查看运转状况;加强检修人员责任心,进步维护检修质量,延伸设备运用寿命。