相切圆弧的基点计算方法【技巧】
客观的说,对于每一个从事数控编程与加工的从业者都是从最基础的知识学起的,同样,本文所讲解的知识也是最基础的,是关于倒角方面的知识讲解!同时,也是部分初学者容易搞不清楚的地方!主要集中在倒角时起点和终点坐标该怎么计算的问题?另外,还有圆弧的判别方法容易混淆的现象!
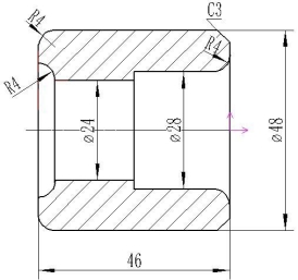
零件图
基于上述两个问题,以这个零件图为例,详细介绍一下各倒角的基点坐标计算以及圆弧判别的方法!
一般,倒角分为倒直角和倒圆角,在数控编程之前先要把倒角的定义或者说是如何形成的搞明白就很简单了!在下图中可知,C3所表示的倒角其实就是一个等腰直角三角形,且两个直角边都是3mm,那么在编程时起点坐标X方向就要减去(加上)两倍的倒角量,Z方向加工时减去(加上)一个倒角量即可,例如:
G01X42F0.1;起点坐标X值,48-2*3=42
Z0
X48Z-3;终点Z坐标-3
……
倒直角
倒圆角
G01X40F0.1;起点坐标X值,48-2*4=42
G03X48Z-4R4;终点Z坐标-4
大家在掌握以上这些知识后,在遇到倒角就不要担心点坐标的问题了!另外一个问题就是圆弧代码指令的判别问题,如图中各个圆弧该用G02还是G03,客观的说我在手编时也要考虑一下!怎么来判别呢?其实我在视频讲解时说过了,就是不论是前置还是后置刀架,一律以后置刀架为例,判别加工该圆弧的走刀轨迹是顺时针还是逆时针?逆时针为G03,顺时针为G02。

按照这个方法,如果我们加工这个零件的右端圆弧时,这个圆弧指令为G02,左端的那个圆弧就是G03,参考程序如下!
右端:
G01X36F0.1;起点坐标28+2*4=36
G02X28Z-4R4终点z坐标-4
凸圆弧
掉头后加工左端:
G01X32F0.1;起点坐标24+2*4=32
G02X24Z-4R4终点z坐标-4
凹圆弧
可以说以上这些圆弧倒角就是一个与直线相切的圆弧,只是这些直线位置比较特殊一些,即要么水平线要么垂直线,如果大家今后遇到下面的零件图又该如何计算切点坐标了呢?两个方法,要么建立曲线方程求解,要么绘图查点计算!
零件图
查点计算比较简单,把图画出来就可以了,至于手工计算也是很简单的。这个点既然是直线和圆弧的切点,说明这个点坐标满足这两个曲线的方程,你就把这两个曲线方程构建出来然后求解即可!
圆的方程为(x-20)^2+(z+82.641)^2=30^2
直线方程为x-20=-1.732*(z+48)
联立两个方程组,即可求出切点A的坐标X=35,Z=-56.66,但是,个人建议还是采用电脑绘图求点设置自动编程较好!你说呢?