风机盘管减震垫安装方法【技巧】
风机盘管减震垫安装方法【技巧】
风机盘管选型定位:按图纸要求确定风机的规格型号及设置位置,检查安装的风机盘管表面有无破损,涡轮转动与蜗壳有无摩擦,电机有无抖动和异常噪音。
质量控制管理把握以下2点:
1、设备规格与设计一致,位置与图纸无冲突,型号不符或有问题的风盘要更换后再吊装;
2、定位位置考虑与风机连接的软接和阀件能否合理布置,检修空间要满足。
风机盘管固定安装:卧式风机盘管安装固定方式有两种,吸顶吊装和悬挂吊装;明装风机盘管安装固定多采用托架或吊架;—明装立式风机盘管采用坐式固定安装;
质量控制把握以下7点:
1、无论采用哪种模式,固定胀栓必须生根牢固、禁用毛栓等非标膨胀件;
2、悬挂吊装风机盘管采用的吊筋丝杆直径宜采用直径不低于∮8的镀锌材质,截取长度不能超过吊装水平线的75px,以风盘校正水平紧固后露出4-5丝最佳;
3、风盘吊装时要在风盘吊挂孔上下加紧固螺母且在下方加装0.5-25px厚橡胶减震垫,采用的紧固螺母必须是与吊杆匹配的国标件;上下螺母要紧死;
4、风机吊装后,风机涡轮后要留有20-625px的检修空间,吊装后的风盘从外观看不能左右偏斜,上下倾斜现象;
5、吸顶吊装时采用的膨胀螺栓长度不低于200px,膨胀紧固要到位;
6、采用托架或吊架安装的风机盘管,拖吊架材料最低选用L3*30的角钢型材,且要做好防腐处理;
7、风机盘管与提前加装的柔性风管、风口连接处应严密、牢固。
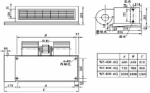
附:卧式安装风机盘管悬挂吊装大样图

风机盘管接管详图
服务机械行业22年 - 专业权威积淀,品牌优势传承